Cabinet de kinésithérapie / Saint Sébastien sur Loire – 44
Présentation du projet :
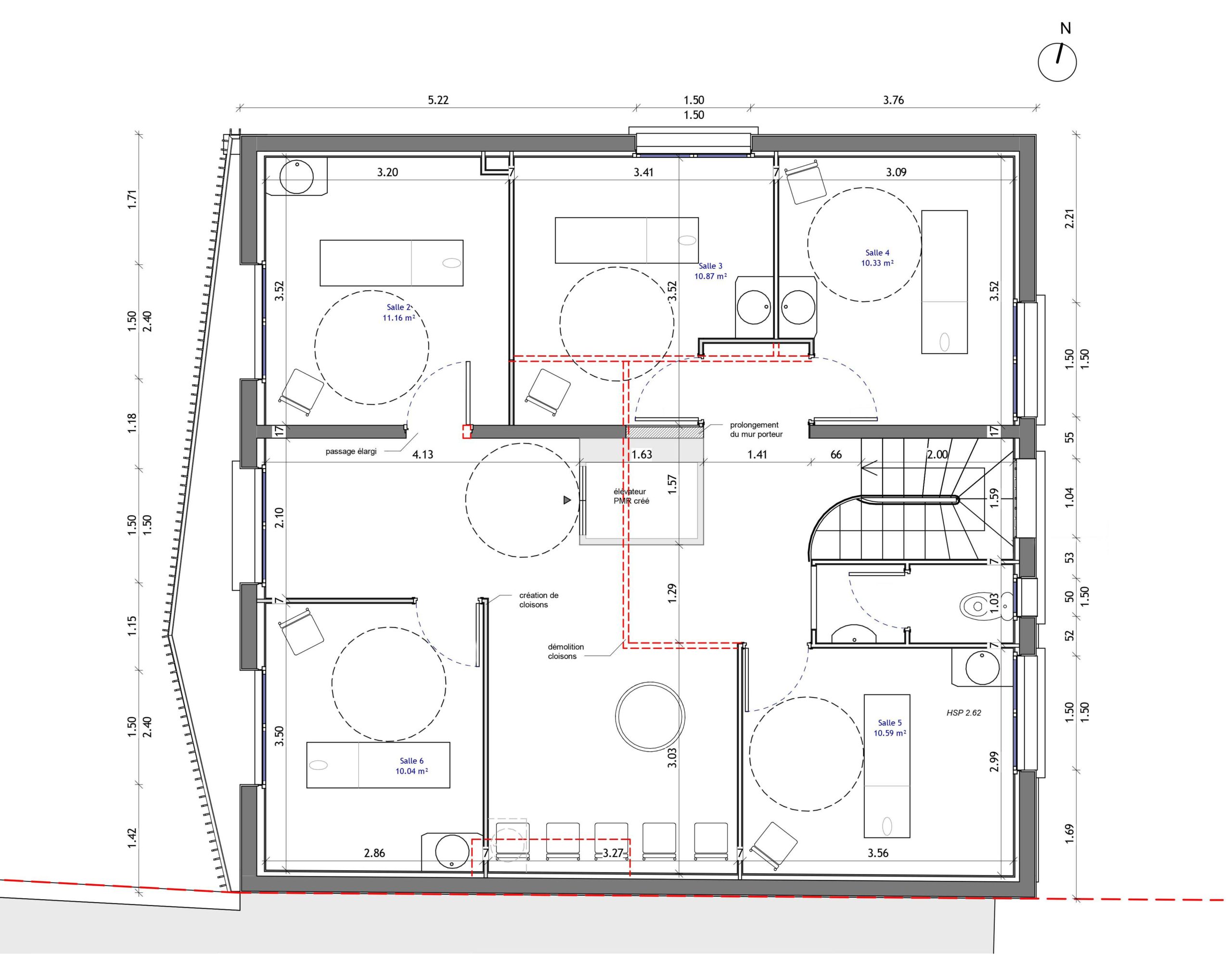
Le projet porte sur la transformation d’une maison d’habitation en cabinet de kinésithérapie.
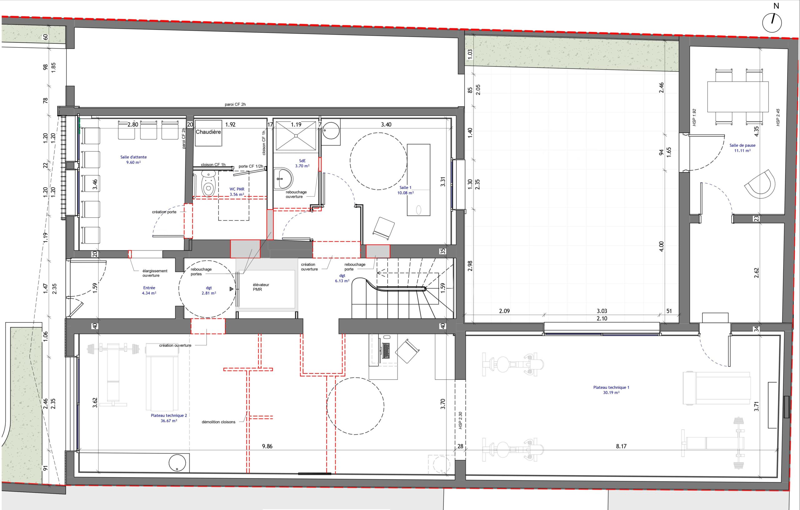
La maison est restructurée pour accueillir 6 cabinets, 2 plateaux techniques, et des espaces dédiés aux professionnels.
Un élévateur est mis en place au centre de l’établissement pour donner accès à l’étage aux Personnes à Mobilité Réduite.
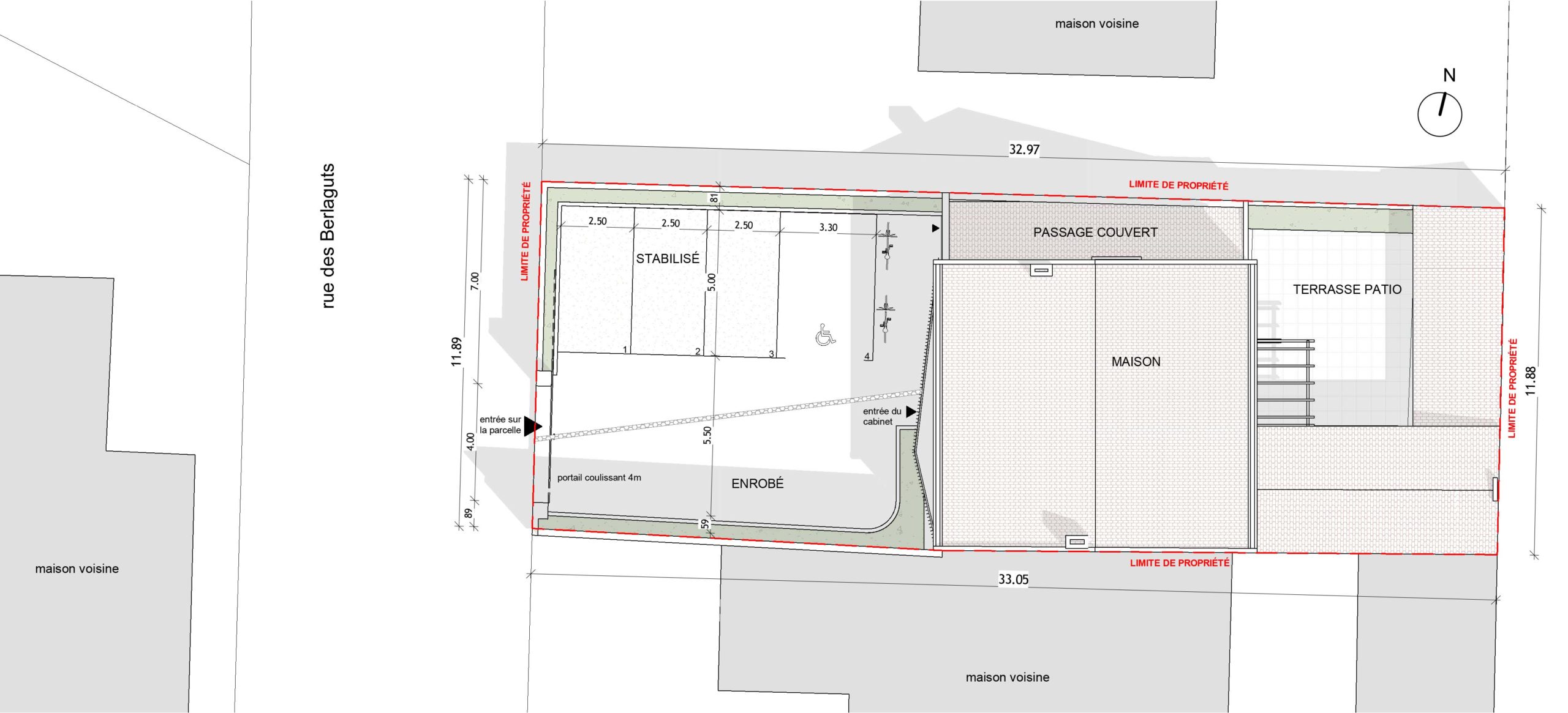
Le parvis est réaménagé pour accueillir des places de stationnement voitures et vélos.
| Maîtrise d’ouvrage : | Privée |
| Maîtrise d’œuvre : | Eric Piton Architectures |
| Lieu : | Saint Sébastien sur Loire (44) |
| Mission : | Partielle : Conception – PC/AT |
| Programme : | Transformation d’une maison individuelle en cabinet de kinésithérapie |
| Surface bâtiment (SP) : | 230 m² |
| Coût travaux : | N.C. |
| Livraison : | 2023 |
| Photographies : | Eric Piton Architectures |