Cellules artisanales / La Baule – 44
Présentation du projet :
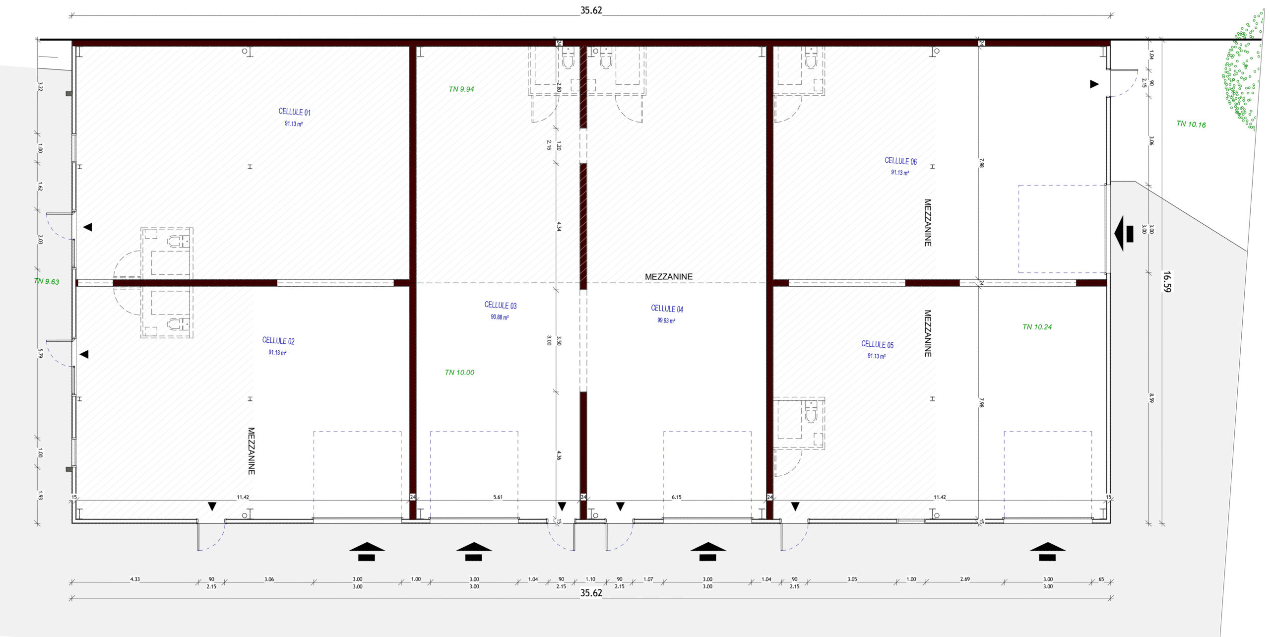
Le projet consiste en la construction d’un bâtiment abritant des cellules artisanales. Le site abrite déjà le bâtiment du Fondant Baulois, au sud de la parcelle, préservant une réserve foncière en partie nord. Les nouvelles cellules artisanales trouvent leur place sur cette partie du terrain.
Les matériaux et les couleurs retenus pour ce projet font échos au bâtiment existant, même si la volumétrie n’est pas identique.
Ainsi, le volume est principalement couvert d’un bardage métallique gris anthracite. Sa façade ouest, sur rue, est plus ouverte : les ouvertures sont rassemblées dans un cadre de bardage bois, dont le contour est délimité par un habillage alu laqué bleu turquoise, identique au code couleur du Fondant Baulois®. La façade nord, située en limite de propriété, est un mur maçonné coupe-feu, enduit de blanc. De manière identique au bâtiment existant du Fondant Baulois®, les menuiseries et les portes sectionnelles sont en aluminium gris foncé. Des panneaux translucides installés sur la façade sud permettent l’éclairage naturel du bâtiment en journée.
| Maîtrise d’ouvrage : | Privée |
| Maîtrise d’œuvre : | Eric Piton Architectures ; CMB bet économiste & opc ; PLBI bet structure |
| Lieu : | La Baule Escoublac (44) |
| Mission : | Partielle : Conception – Permis de construire |
| Programme : | Construction d’un bâtiment industriel abritant des cellules artisanales |
| Surface bâtiment (SP) : | 850 m2 |
| Coût travaux : | 500 000.00 €HT |
| Livraison : | Études en cours |
| Photographies : | Eric Piton Architectures |