Rénovation d’un appartement face à la mer / La Baule – 44
Présentation du projet :
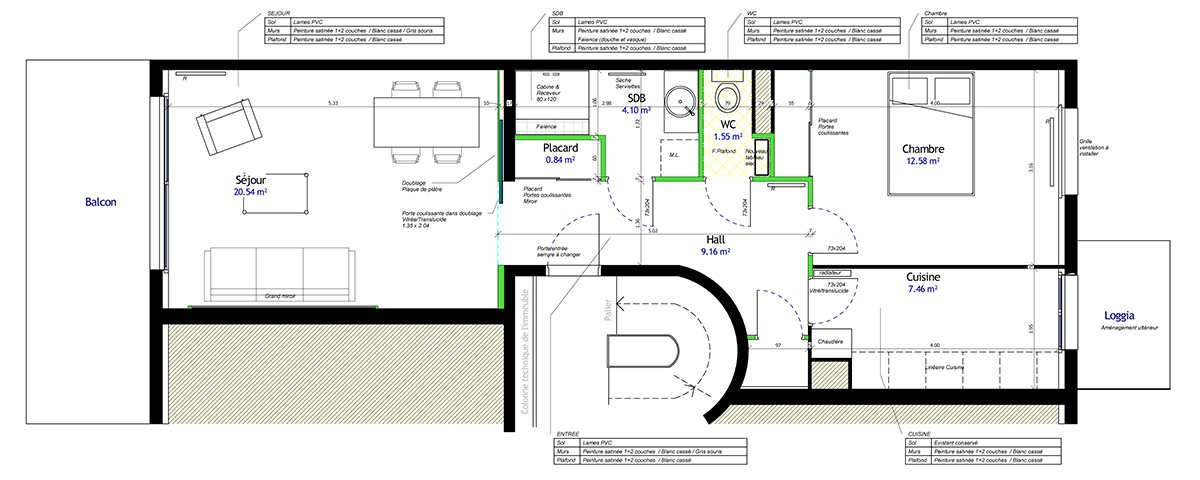
Le projet porte sur la rénovation et le réaménagement d’un appartement de 60m² sur le front de mer de La Baule. Restructuré pour une meilleure fluidité des espaces, l’appartement redevient lumineux.
L’ambiance calme et sereine qui s’en dégage est propice à la contemplation de l’océan.
| Maîtrise d’ouvrage : | Privée |
| Maîtrise d’œuvre : | Eric Piton Architectures |
| Lieu : | La Baule (44) |
| Mission : | Complète : mission de base |
| Programme : | Rénovation d’un appartement |
| Surface bâtiment (SP) : | 60 m2 |
| Coût travaux : | N.C. |
| Livraison : | 2011 |
| Photographies : | Eric Piton Architectures |