Surélévation maison / Nantes – 44
Présentation du projet :
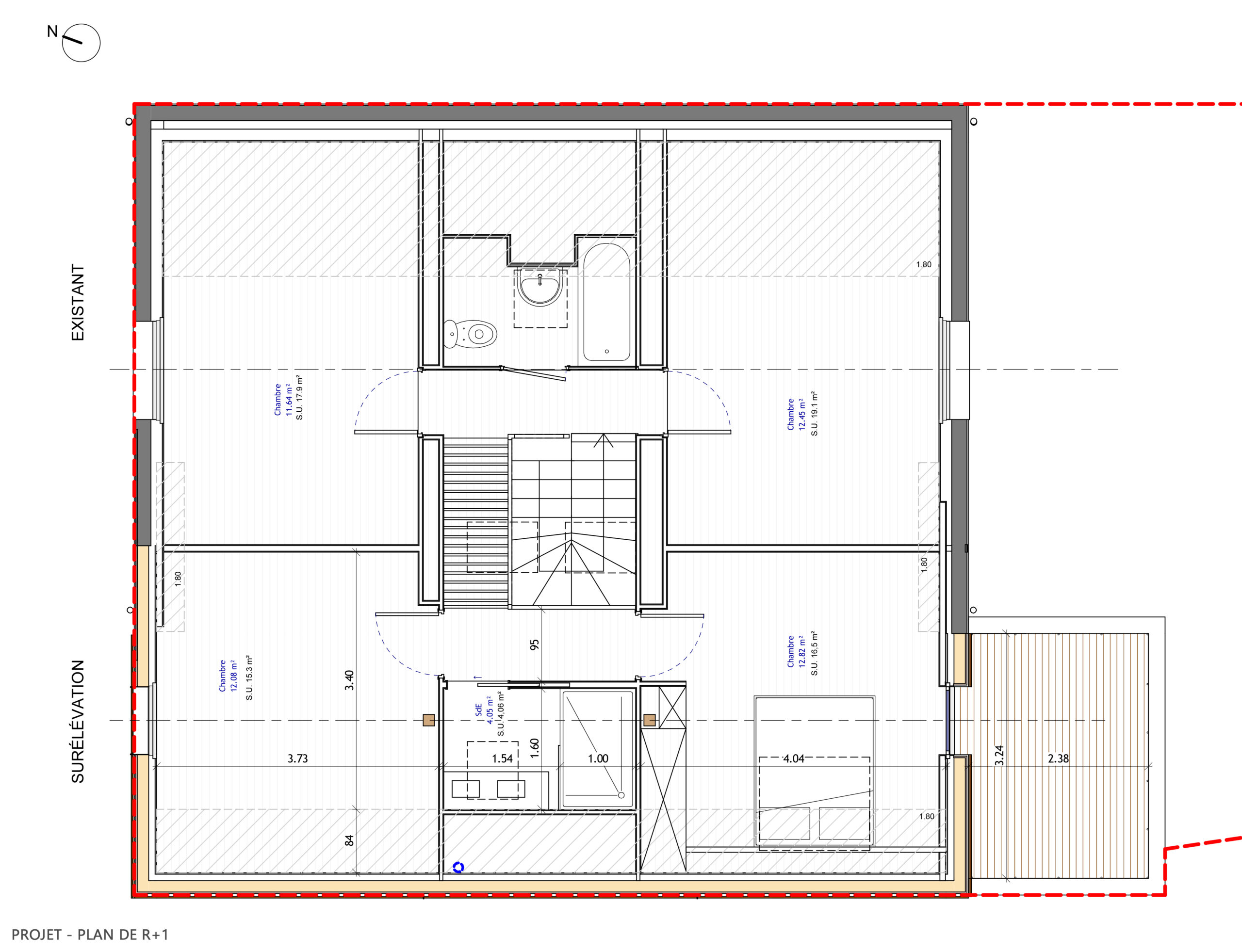
Le projet porte sur la surélévation d’une maison située dans une résidence composée de 6 maisons identiques. Cette extension accueille une suite parentale et un bureau.
La surélévation vient « doubler » la toiture existante à deux pans en reprenant la même forme. Elle se distingue cependant de l’architecture d’origine par ses matériaux : construite en ossature bois, elle est vêtue d’un bardage en bois posé à l’horizontal, agrémenté de tasseaux verticaux rythmant les pignons et la façade.
Un porche d’entrée est créé par le débord de l’extension au-dessus du garage, sur le parvis nord.
Les deux toitures (existante et surélévation) sont reliées par une toiture mansardée, située en léger retrait par rapport aux deux pignons, afin de rester discrète entre les deux toitures principales. Elle permet de passer de la partie existante à l’extension, et augmente la surface habitable de la maison en réduisant les espaces sous pentes.
Démarche environnementale :
RT 2012 – Structure bois
| Maîtrise d’ouvrage : | Privée |
| Maîtrise d’œuvre : | Eric Piton Architectures – CMB |
| Lieu : | Nantes (44) |
| Mission : | Conception – Permis de construire – Consultation des entreprises |
| Programme : | Surélévation d’une maison individuelle |
| Surface bâtiment (SP) : | Surélévation : 43 m² |
| Coût travaux : | N.C. |
| Livraison : | Études en cours |
| Photographies : | Eric Piton Architectures |